• WORK
  • ABOUT
  • RESUME
  • LINKEDIN
  • CONTACT

Natalie A. Pyzik

Portfolio

  • WORK
  • ABOUT
  • RESUME
  • LINKEDIN
  • CONTACT

Graduate Thesis Project

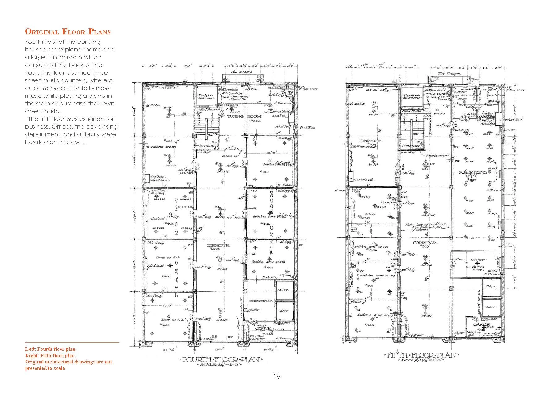
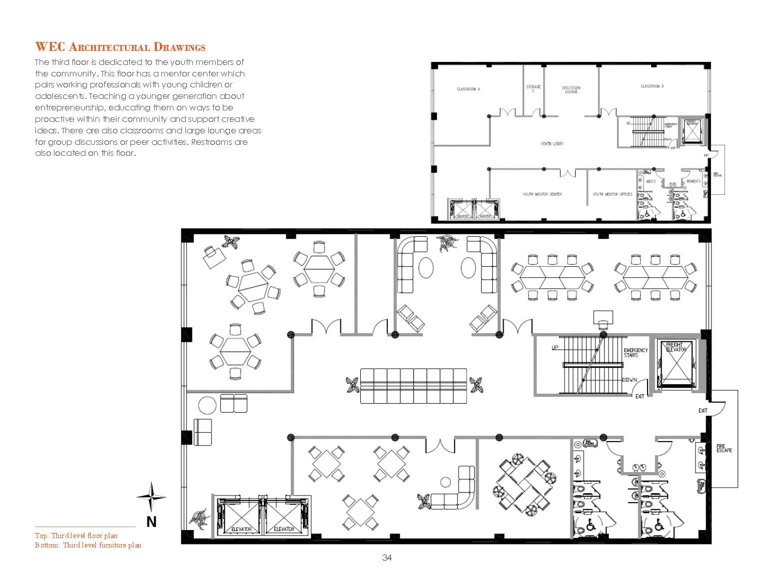
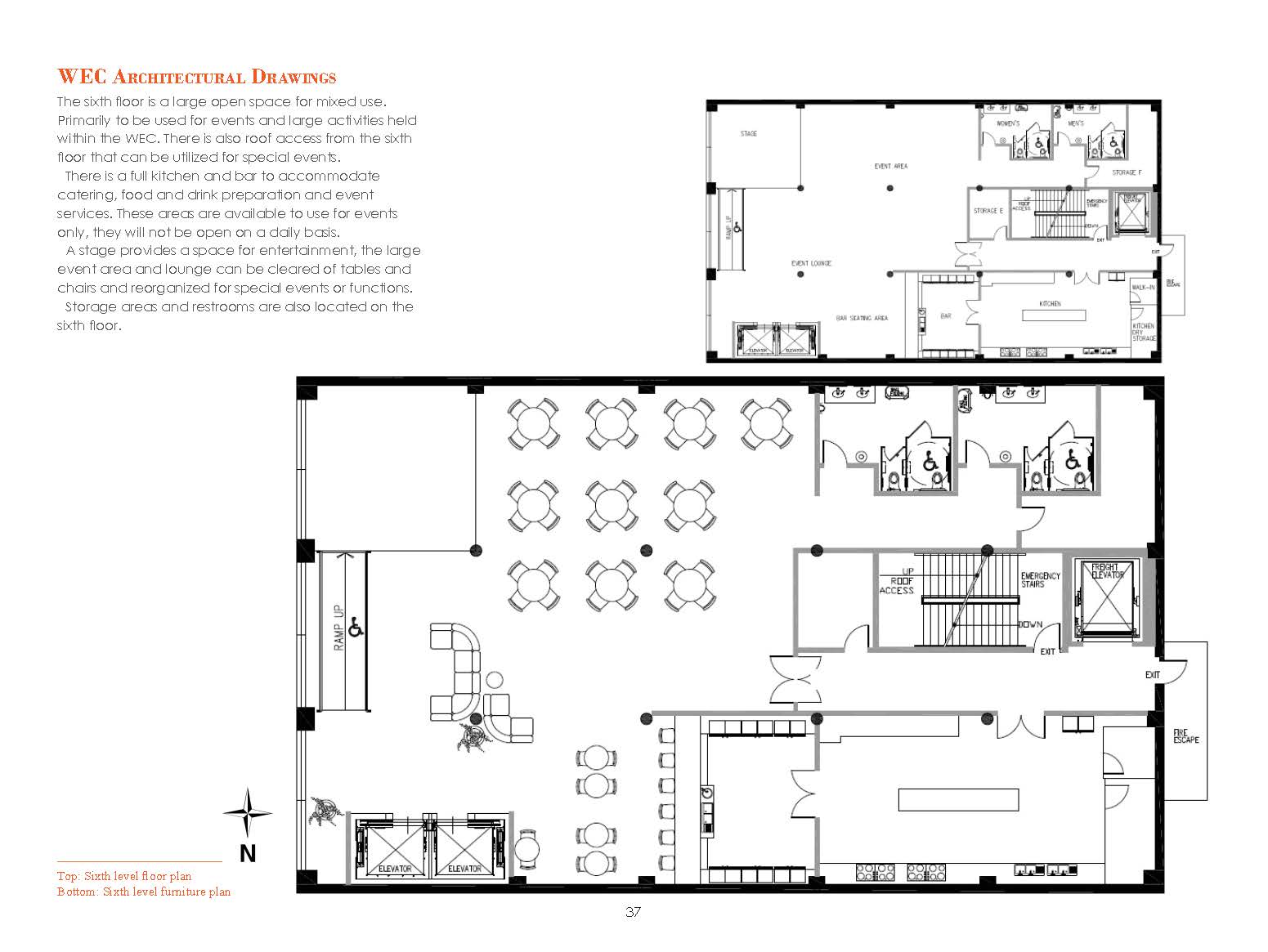
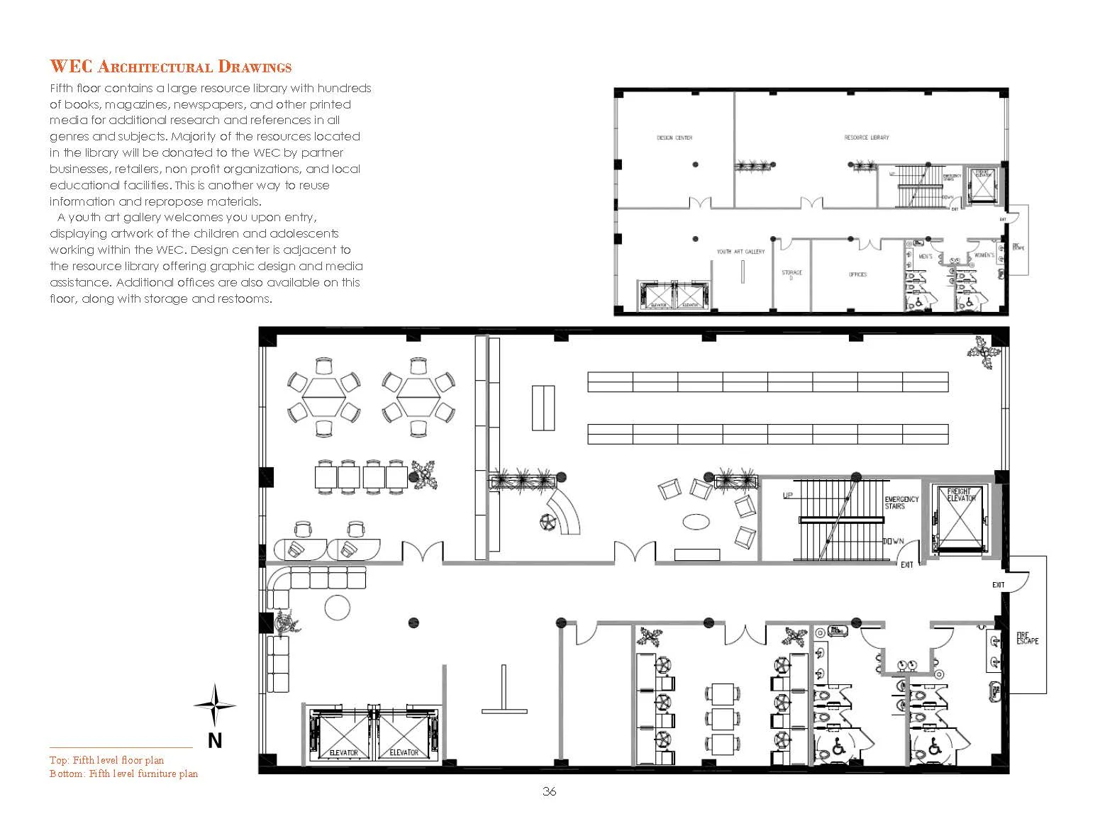
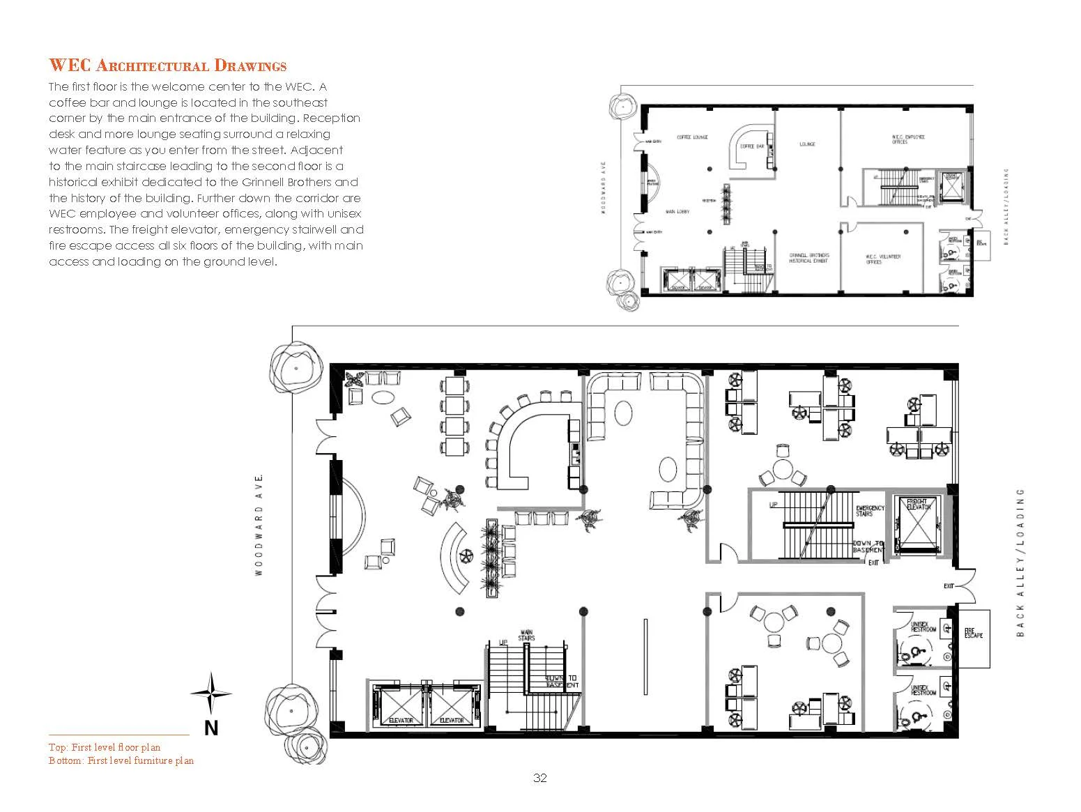
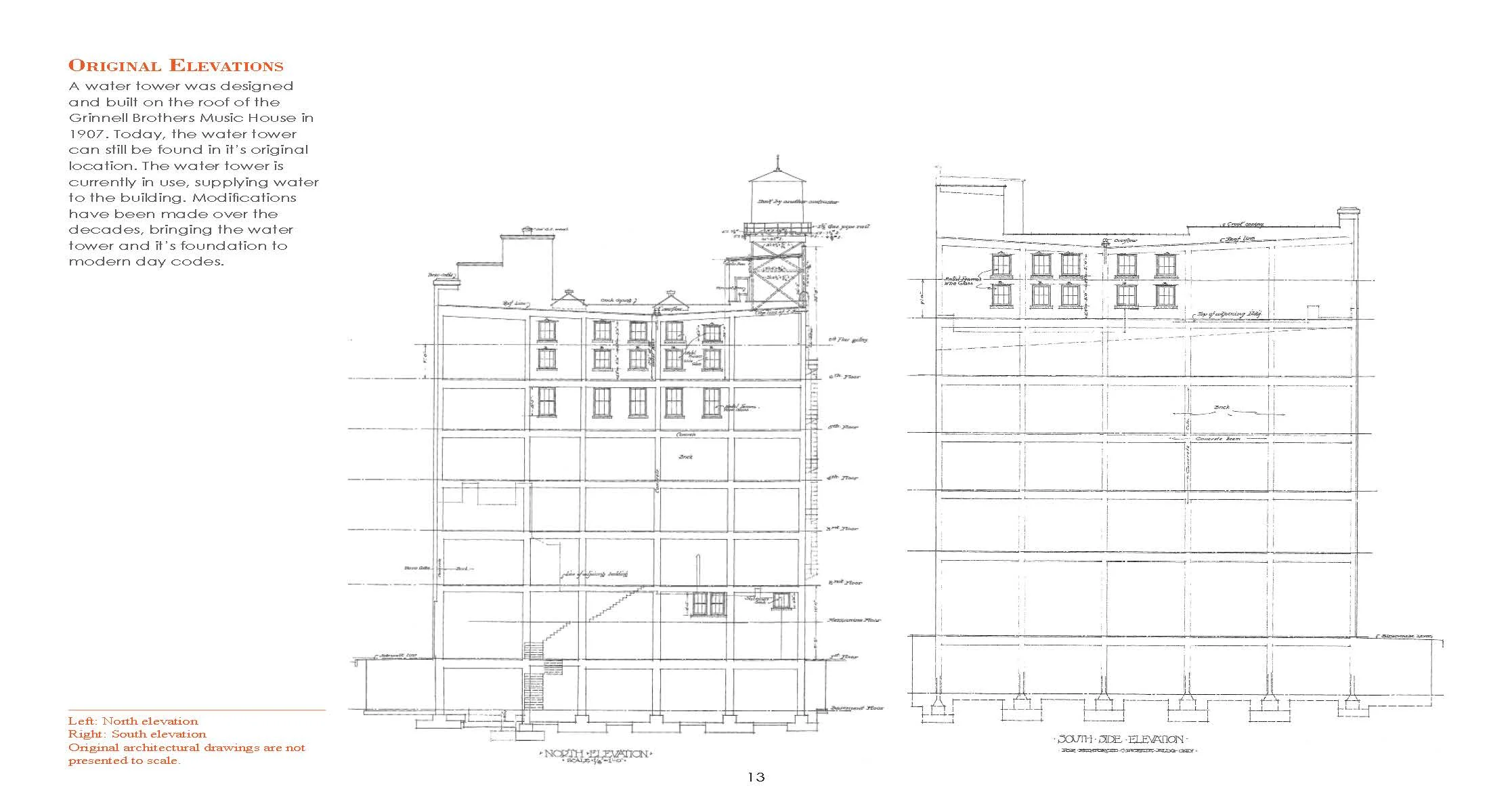
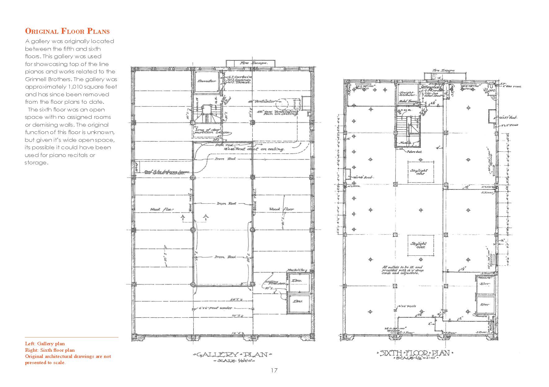
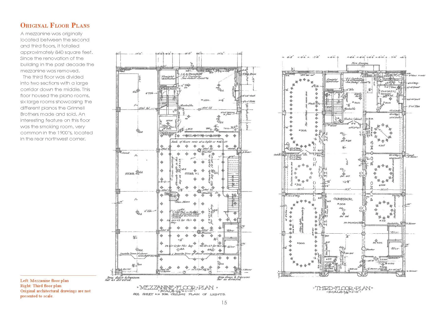
The Woodward Entrepreneur Center, WEC for short, will be a transformation of the historic Grinnell Brothers Music House located at 1515 Woodward Ave in Detroit Michigan. The WEC will occupy 36,000 square feet of the existing 44,825 square foot building. WEC will be a modern facility for young professionals and youth within the community offering services on entrepreneurship. Within the building will be a cafe, classrooms, open brainstorming and work spaces, computer lab, youth mentor center, resource library and a large event area for community functions and business seminars. The Woodward Entrepreneur Center will be fully handicap accessible and an equal opportunity educator for all members of the Detroit community. WEC is young professionals with Detroit inspiration, educating generations for a common purpose to rebuild the community and refresh the attitude toward businesses in Detroit.

Media Used: AutoCAD, 3ds Max, Manual Drafting, Photoshop, Sketching

All rights are owned by Natalie A. Pyzik.  

Pyzik_ID-02834432_Final Thesis Book (pages)_Page_01.jpg
Pyzik_ID-02834432_Final Thesis Book (pages)_Page_03.jpg
Pyzik_ID-02834432_Final Thesis Book (pages)_Page_06.jpg
Pyzik_ID-02834432_Final Thesis Book (pages)_Page_07.jpg
Pyzik_ID-02834432_Final Thesis Book (pages)_Page_08.jpg
Pyzik_ID-02834432_Final Thesis Book (pages)_Page_09.jpg
Pyzik_ID-02834432_Final Thesis Book (pages)_Page_10.jpg
Pyzik_ID-02834432_Final Thesis Book (pages)_Page_11.jpg
Pyzik_ID-02834432_Final Thesis Book (pages)_Page_12.jpg
Pyzik_ID-02834432_Final Thesis Book (pages)_Page_13.jpg
Pyzik_ID-02834432_Final Thesis Book (pages)_Page_14.jpg
Pyzik_ID-02834432_Final Thesis Book (pages)_Page_15.jpg
Pyzik_ID-02834432_Final Thesis Book (pages)_Page_16.jpg
Pyzik_ID-02834432_Final Thesis Book (pages)_Page_17.jpg
Pyzik_ID-02834432_Final Thesis Book (pages)_Page_18.jpg
Pyzik_ID-02834432_Final Thesis Book (pages)_Page_19.jpg
Pyzik_ID-02834432_Final Thesis Book (pages)_Page_20.jpg
Pyzik_ID-02834432_Final Thesis Book (pages)_Page_21.jpg
Pyzik_ID-02834432_Final Thesis Book (pages)_Page_22.jpg
Pyzik_ID-02834432_Final Thesis Book (pages)_Page_23.jpg
Pyzik_ID-02834432_Final Thesis Book (pages)_Page_24.jpg
Pyzik_ID-02834432_Final Thesis Book (pages)_Page_25.jpg
Pyzik_ID-02834432_Final Thesis Book (pages)_Page_26.jpg
Pyzik_ID-02834432_Final Thesis Book (pages)_Page_27.jpg
Pyzik_ID-02834432_Final Thesis Book (pages)_Page_28.jpg
Pyzik_ID-02834432_Final Thesis Book (pages)_Page_29.jpg
Pyzik_ID-02834432_Final Thesis Book (pages)_Page_30.jpg
Pyzik_ID-02834432_Final Thesis Book (pages)_Page_31.jpg
Pyzik_ID-02834432_Final Thesis Book (pages)_Page_32.jpg
Pyzik_ID-02834432_Final Thesis Book (pages)_Page_33.jpg
Pyzik_ID-02834432_Final Thesis Book (pages)_Page_34.jpg
Pyzik_ID-02834432_Final Thesis Book (pages)_Page_35.jpg
Pyzik_ID-02834432_Final Thesis Book (pages)_Page_36.jpg
Pyzik_ID-02834432_Final Thesis Book (pages)_Page_37.jpg
Pyzik_ID-02834432_Final Thesis Book (pages)_Page_38.jpg
Pyzik_ID-02834432_Final Thesis Book (pages)_Page_39.jpg
Pyzik_ID-02834432_Final Thesis Book (pages)_Page_40.jpg
Pyzik_ID-02834432_Final Thesis Book (pages)_Page_41.jpg
Pyzik_ID-02834432_Final Thesis Book (pages)_Page_42.jpg
Pyzik_ID-02834432_Final Thesis Book (pages)_Page_43.jpg
Pyzik_ID-02834432_Final Thesis Book (pages)_Page_44.jpg
Pyzik_ID-02834432_Final Thesis Book (pages)_Page_45.jpg
Pyzik_ID-02834432_Final Thesis Book (pages)_Page_46.jpg
Pyzik_ID-02834432_Final Thesis Book (pages)_Page_47.jpg
Pyzik_ID-02834432_Final Thesis Book (pages)_Page_48.jpg
Pyzik_ID-02834432_Final Thesis Book (pages)_Page_49.jpg
Pyzik_ID-02834432_Final Thesis Book (pages)_Page_50.jpg
Pyzik_ID-02834432_Final Thesis Book (pages)_Page_51.jpg
Pyzik_ID-02834432_Final Thesis Book (pages)_Page_52.jpg
Pyzik_ID-02834432_Final Thesis Book (pages)_Page_53.jpg
Pyzik_ID-02834432_Final Thesis Book (pages)_Page_54.jpg
Pyzik_ID-02834432_Final Thesis Book (pages)_Page_55.jpg
Pyzik_ID-02834432_Final Thesis Book (pages)_Page_56.jpg
Pyzik_ID-02834432_Final Thesis Book (pages)_Page_58.jpg

Powered by Squarespace 6