• WORK
  • ABOUT
  • RESUME
  • LINKEDIN
  • CONTACT

Natalie A. Pyzik

Portfolio

  • WORK
  • ABOUT
  • RESUME
  • LINKEDIN
  • CONTACT

Graduate Thesis Project

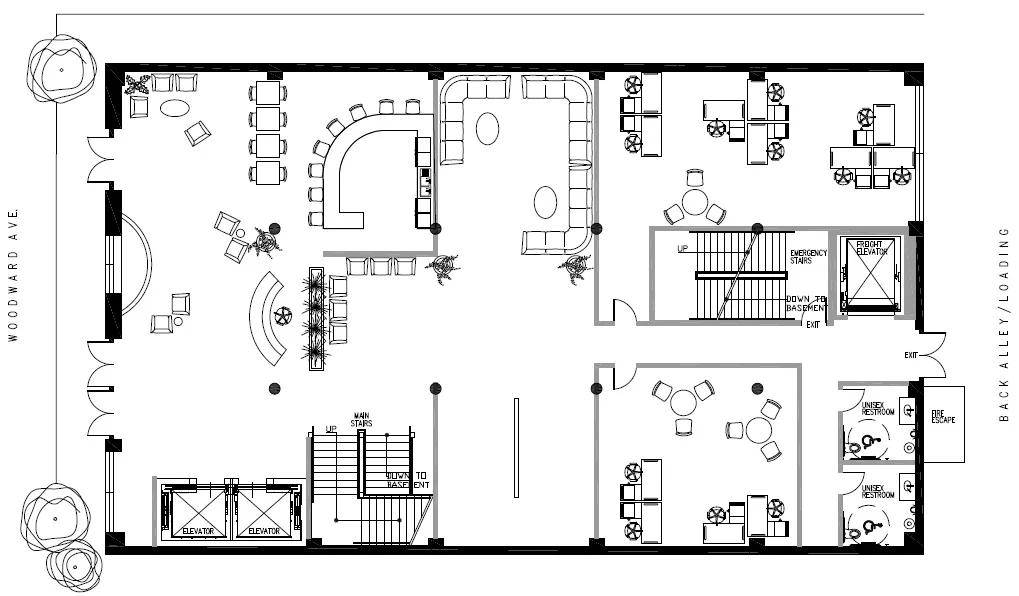
The Woodward Entrepreneur Center, WEC for short, will be a transformation of the historic Grinnell Brothers Music House located at 1515 Woodward Ave in Detroit Michigan. The WEC will occupy 36,000 square feet of the existing 44,825 square foot building. WEC will be a modern facility for young professionals and youth within the community offering services on entrepreneurship. Within the building will be a cafe, classrooms, open brainstorming and work spaces, computer lab, youth mentor center, resource library and a large event area for community functions and business seminars. The Woodward Entrepreneur Center will be fully handicap accessible and an equal opportunity educator for all members of the Detroit community. WEC is young professionals with Detroit inspiration, educating generations for a common purpose to rebuild the community and refresh the attitude toward businesses in Detroit.

Media Used: AutoCAD, 3ds Max, Manual Drafting, Photoshop, Sketching

All rights are owned by Natalie A. Pyzik.  

3ds Max Work

All images were created using 3ds Max. Minor Photoshop editing was used for final results.

 All rights are owned by Natalie A. Pyzik.

 

CAD Work

All images were created using AutoCAD 2014. Floor plans shown are apart of my thesis project Woodward Entrepreneur Center. For full project details please visit my Graduate Thesis Project gallery. 

 All rights are owned by Natalie A. Pyzik.

 

Photoshop Work

Various media was used; AutoCAD, ArchiCAD, photography, and hand rendering have been perfected with addition to Photoshop skills for final digital results. 

 All rights are owned by Natalie A. Pyzik.

  

 

Project: Lone Oak Ranch

Lone Oak Ranch is a sustainable project located in Tehachapi, California.

Media Used: ArchiCAD

All rights are owned by Natalie A. Pyzik.

  

Project: Bowspirit

Bowspirit is an open and organic work environment to allow enhanced productivity due to light natural surroundings. Movement and forward progression have been established in design inspired by the bowsprit of a vessel in the waves of the water.

To produce an open environment glass walls are used throughout the design. This allows for mixed work environments and easy access to all employees within one work space. Glass is also used to symbolize water with custom light fixtures and furniture details.

Media Used: ArchiCAD, Photoshop, Hand Rendering

All right are owned by Natalie A. Pyzik.  

 

Graduate Thesis Project

— view —

Cover photo.jpg

3ds Max Work

— view —

Final Event Area_1.jpg

CAD Work

— view —

Furniture-1.jpg

Photoshop Work

— view —

Project: Lone Oak Ranch

— view —

final_model_aerial.jpg

Project: Bowspirit

— view —

Untitled1.jpg

Powered by Squarespace 6